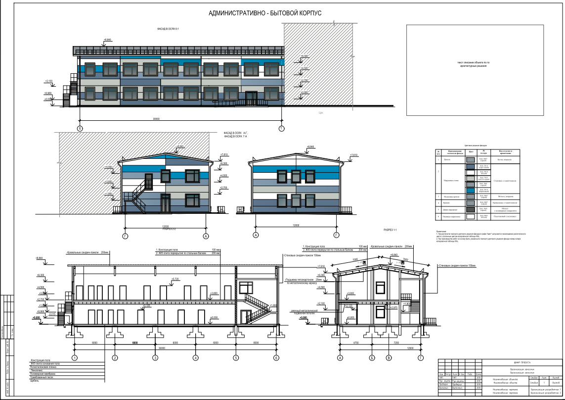
Разработка чертежей металлокаркаса
Подготовить комплект чертежей по металлической конструкции для дальнейшей проработки, согласования и использования в работе.
Выполнили проработку конструкции, оформили основные элементы, узлы и схемы, подготовили комплект материалов в понятном техническом виде.
Заказчик получил структурированный комплект чертежей для дальнейшего использования в проектной и производственной работе.



























